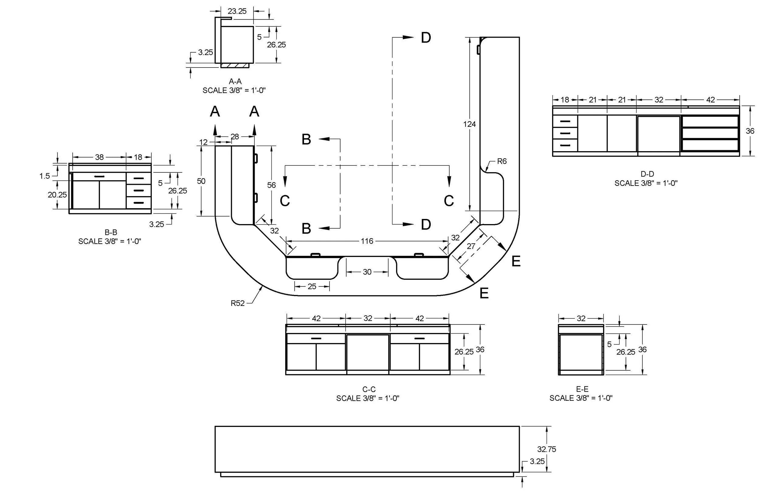
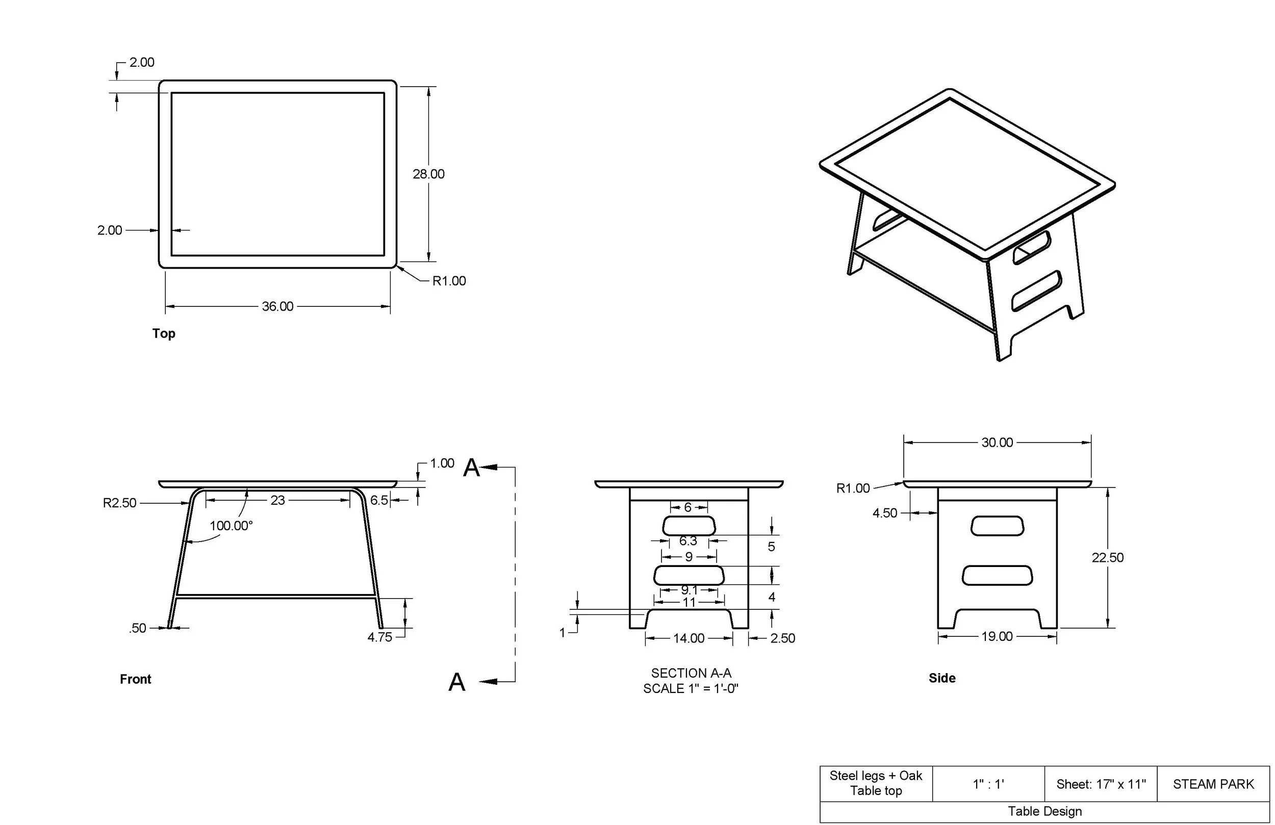
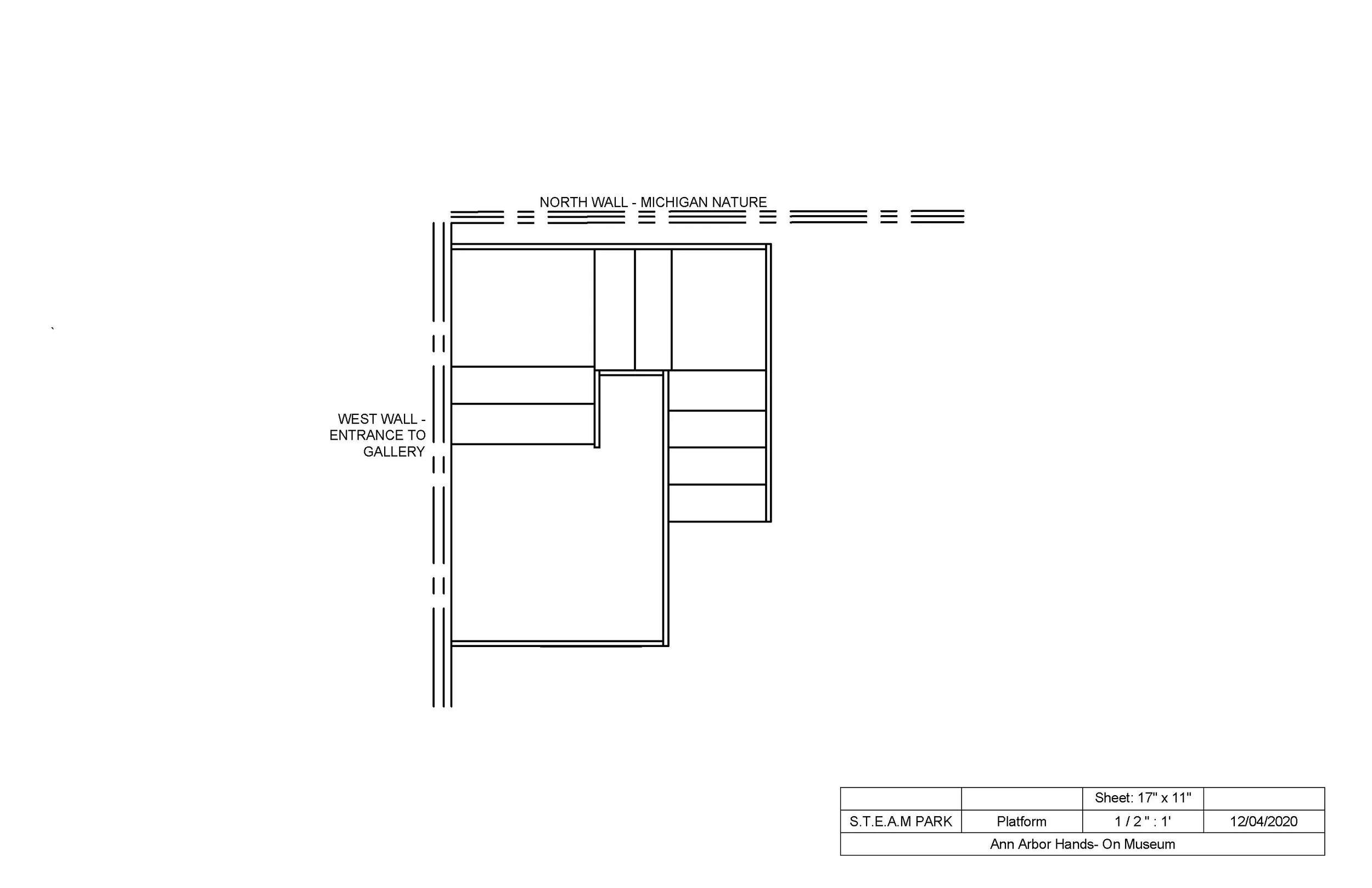
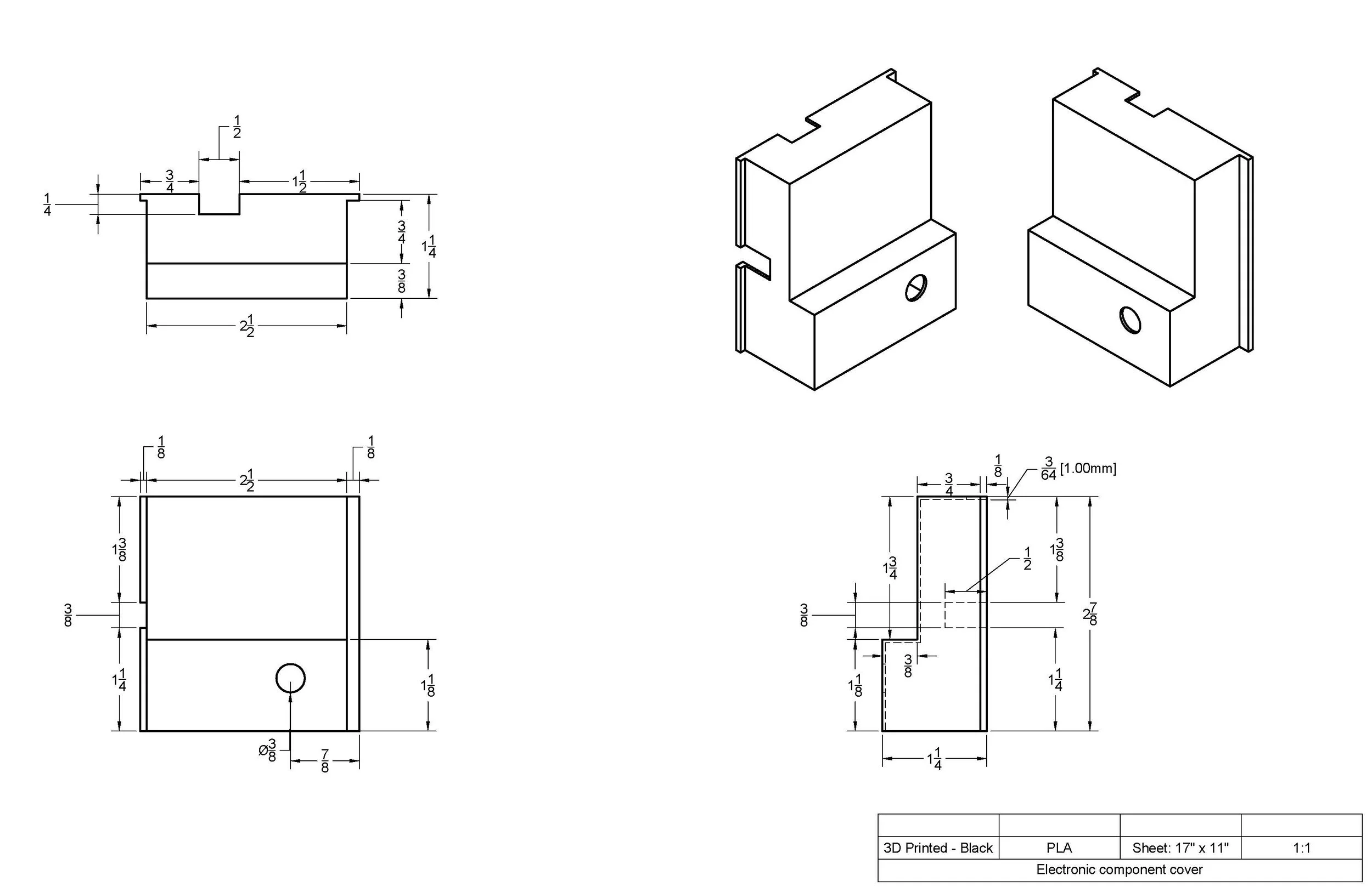
3D Design Drawings
Various 3D Drawings created in Fusion 360